Позвоните мне
вернуться в портфолио Портфолио

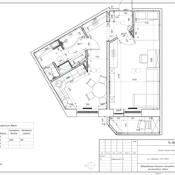
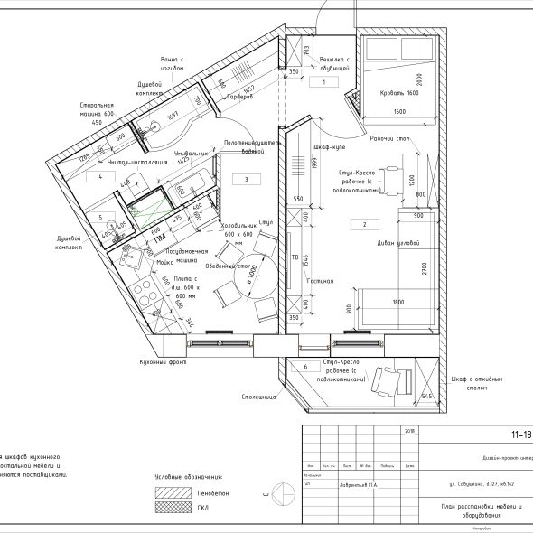
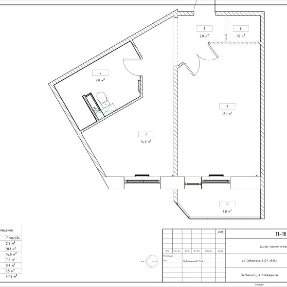
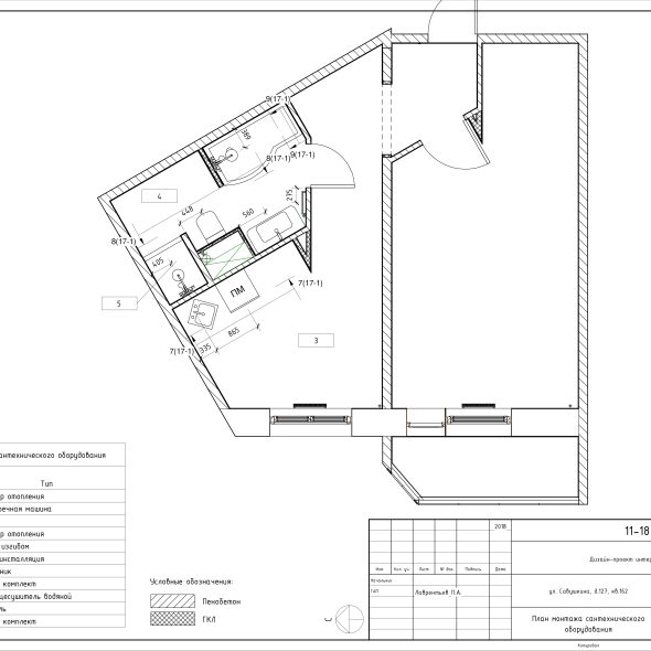
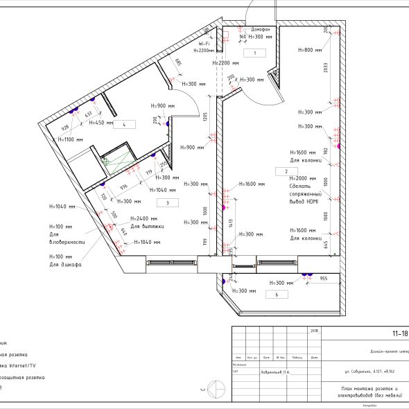
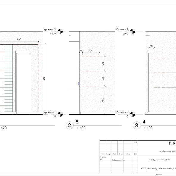
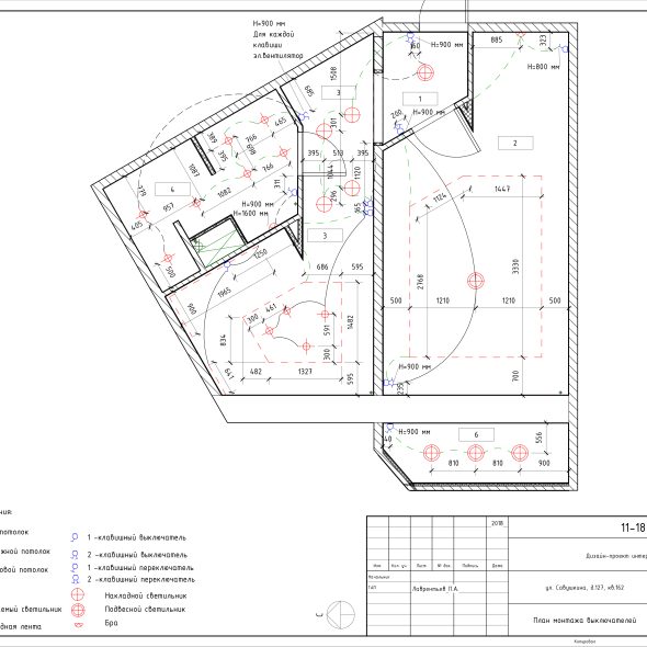
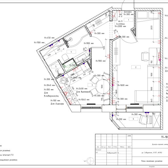
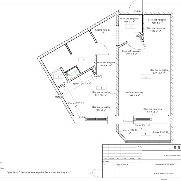
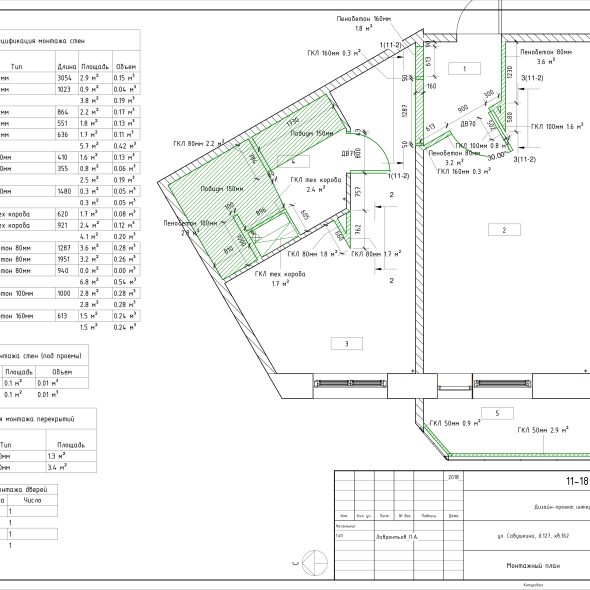
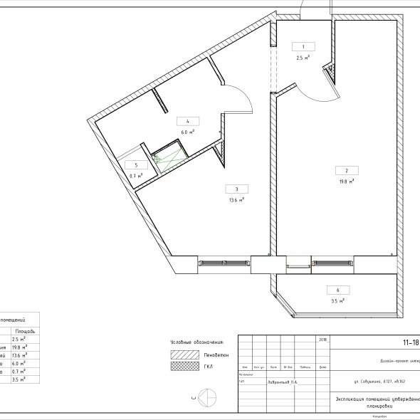
Дизайн проект однокомнатной квартиры на Савушкина 127

Объект

Объект: Однокомнатная квартира

площадь

Площадь: 29 м2

локация

Локация: Савушкина 127

Другие проекты

Двухкомнатная квартира для двух сестер 65 м2

Трехкомнатная квартира для для семьи с 2 детьми

Получите консультацию дизайнера
по вашему проекту

    Переместите ползунок до 100%, чтобы отправить форму

    Заполняя форму, я даю согласие на обработку персональных данных

    form