Позвоните мне
вернуться в портфолио Портфолио

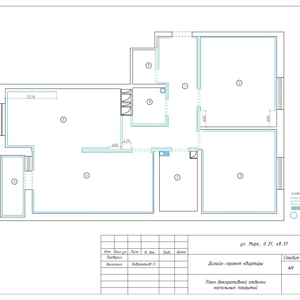
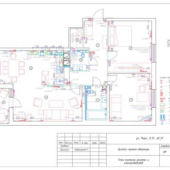
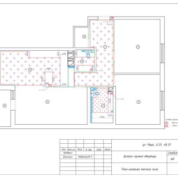
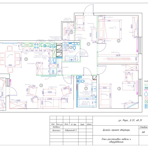
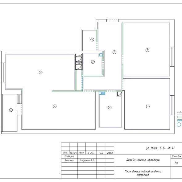
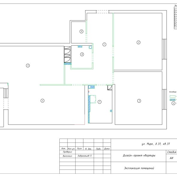
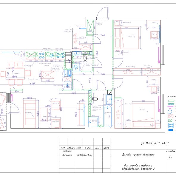
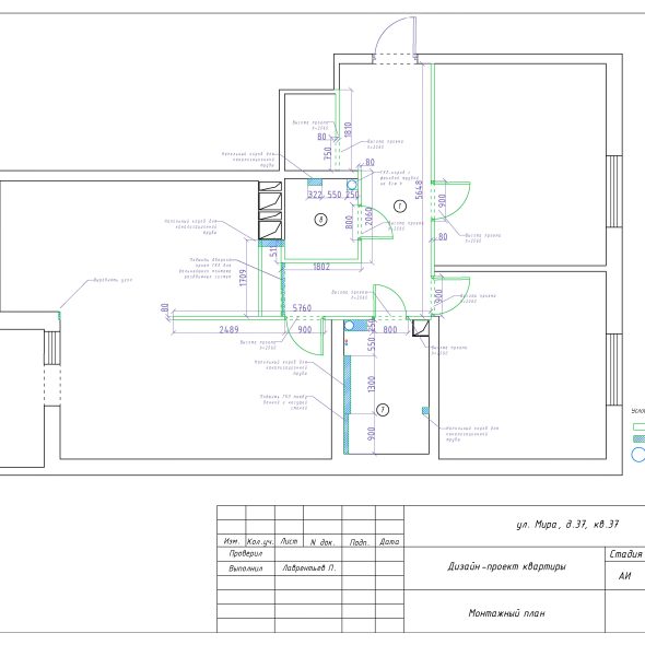
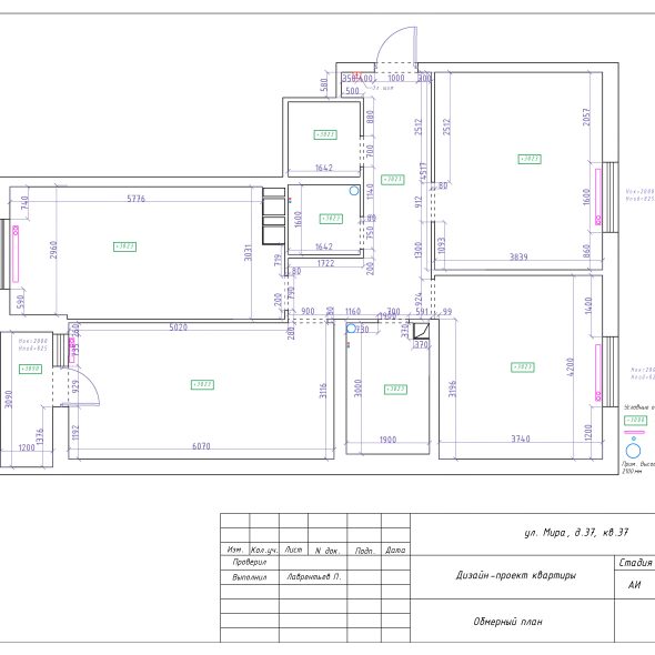
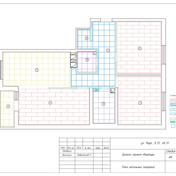
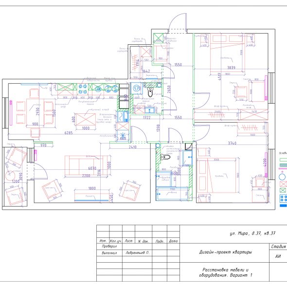
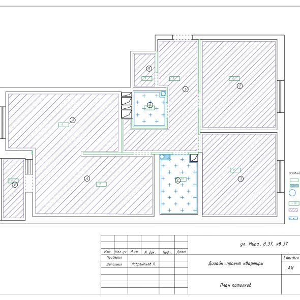
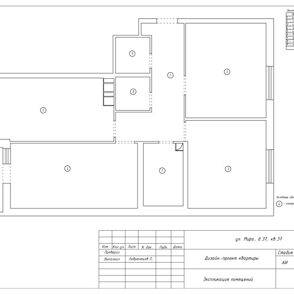
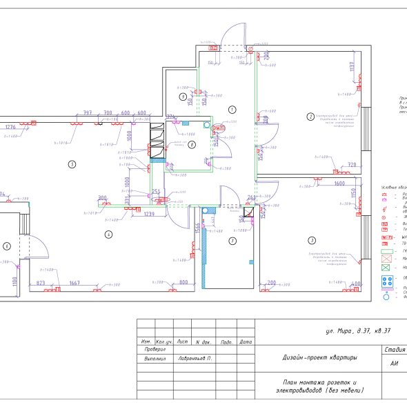
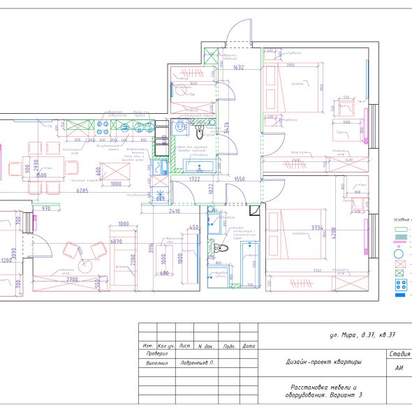
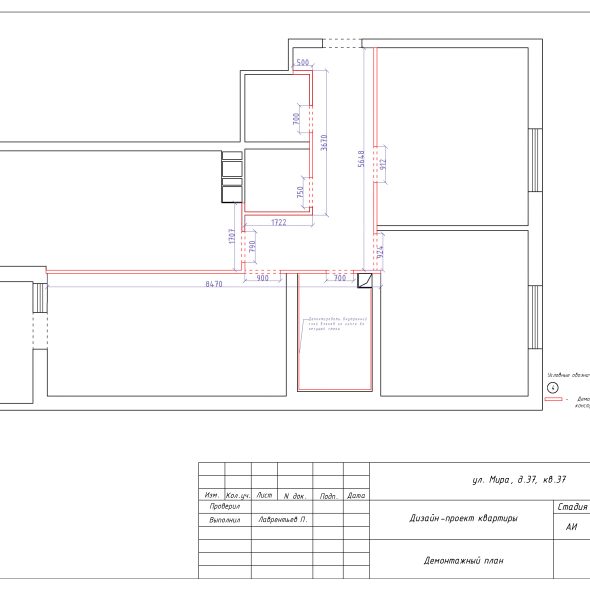
Дизайн проект трехкомнатной квартиры ул. Мира 37

Объект

Объект: Трехкомнатная квартира

площадь

Площадь: 81 м2

локация

Локация: ул. Мира 37

Другие проекты

Трехкомнатная квартира для для семьи с 2 детьми

Коттедж для большой семьи 140 м2

Получите консультацию дизайнера
по вашему проекту

    Переместите ползунок до 100%, чтобы отправить форму

    Заполняя форму, я даю согласие на обработку персональных данных

    form