Позвоните мне
вернуться в портфолио Портфолио

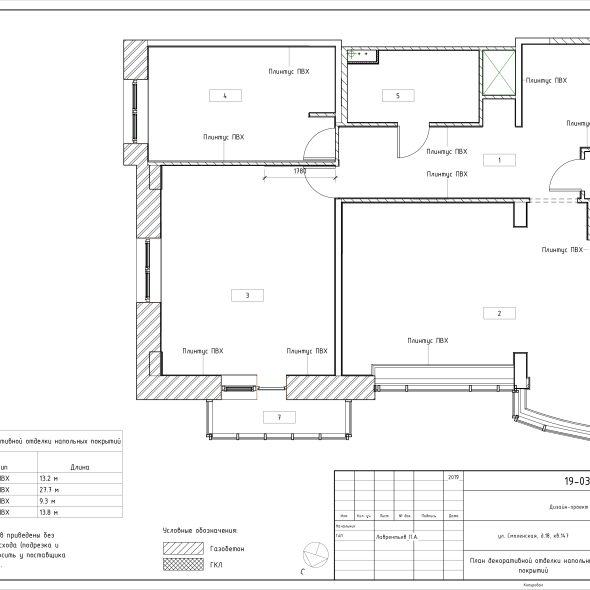
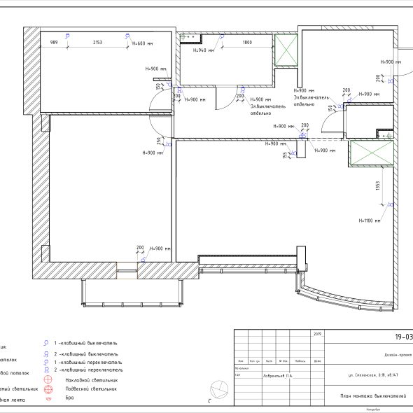
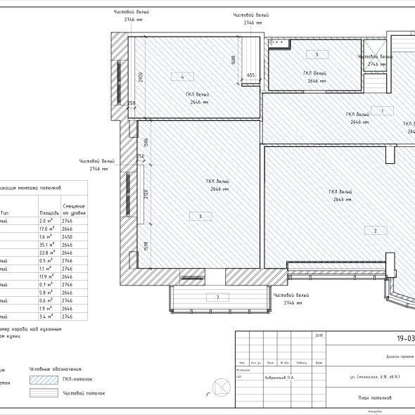
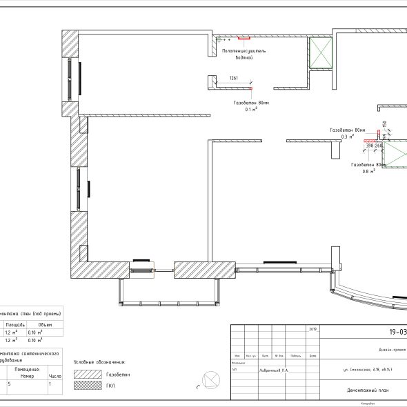
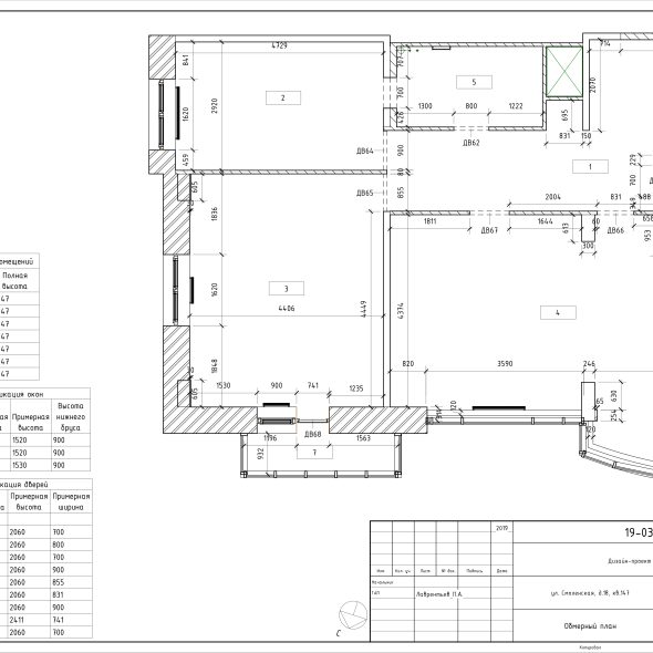
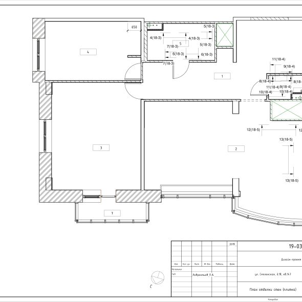
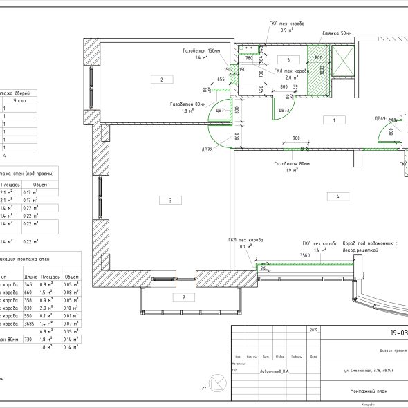
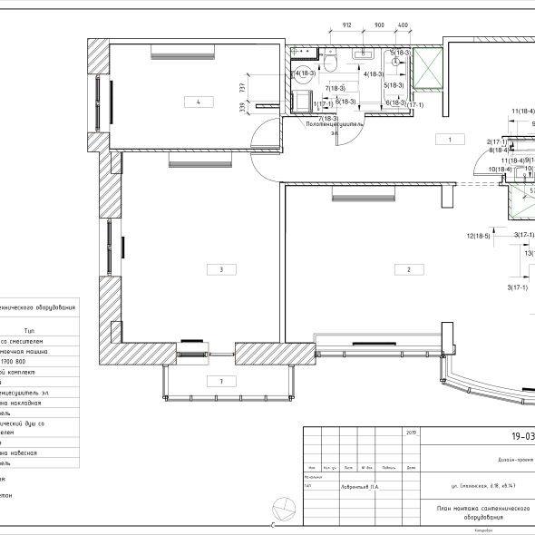
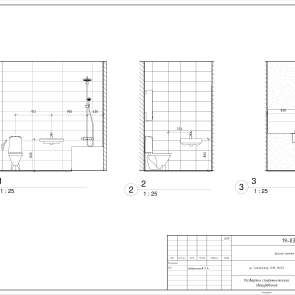
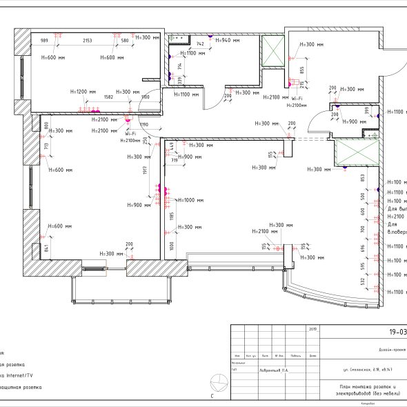
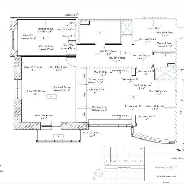
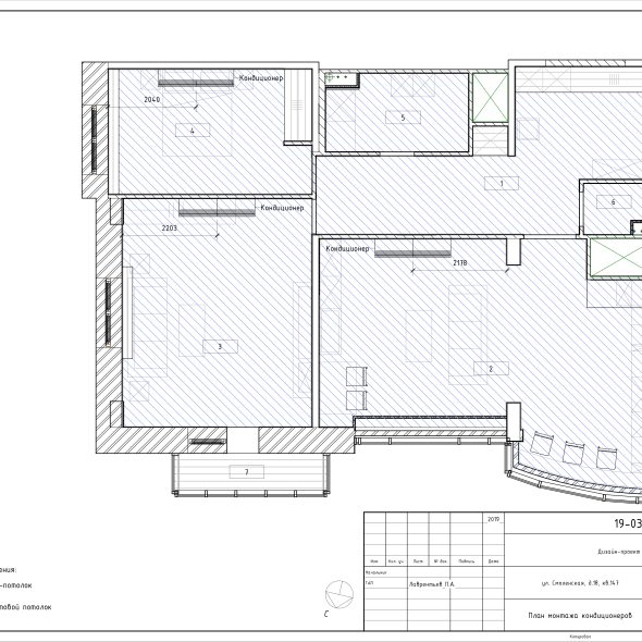
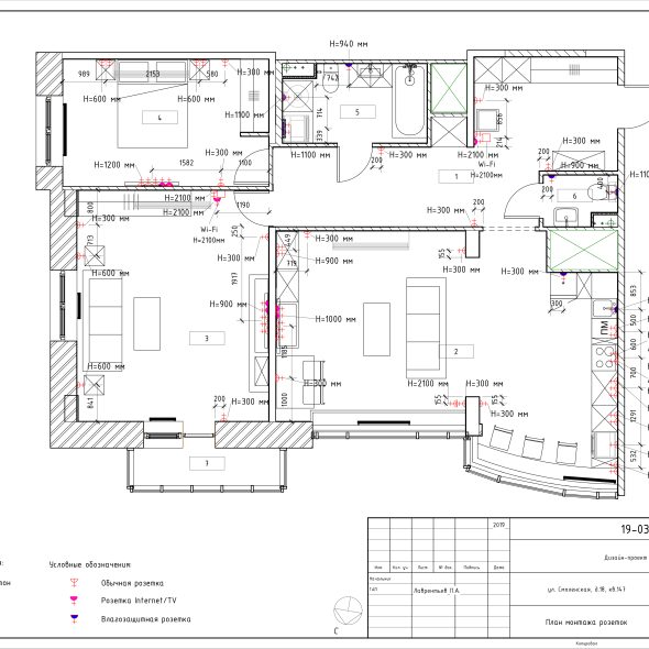
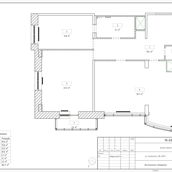
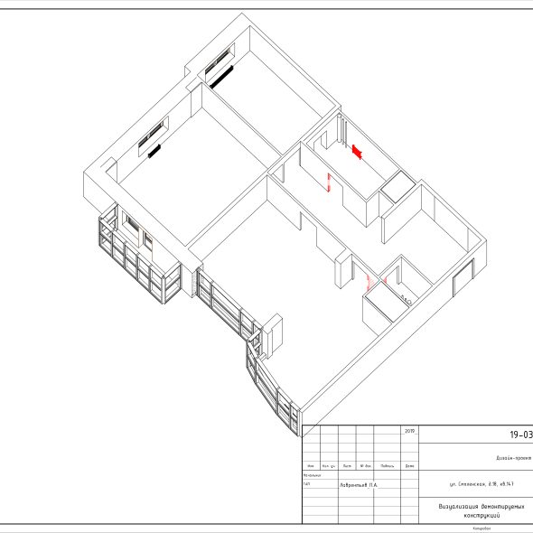
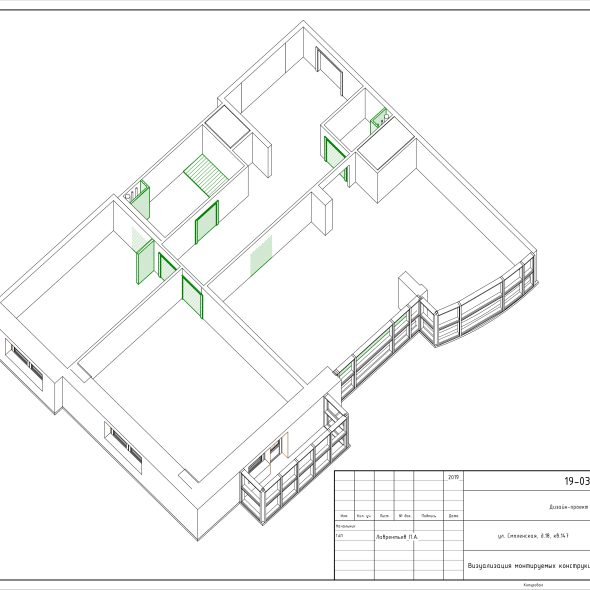
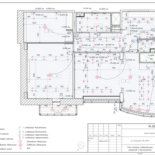
Дизайн проект трехкомнатной квартиры ул. Смоленская 18

Объект

Объект: Трехкомнатная квартира

площадь

Площадь: 76 м2

локация

Локация: ул. Смоленская 18

Другие проекты

Трехкомнатная квартира для для семьи с 2 детьми

Двухкомнатная квартира для двух сестер 65 м2

Получите консультацию дизайнера
по вашему проекту

    Переместите ползунок до 100%, чтобы отправить форму

    Заполняя форму, я даю согласие на обработку персональных данных

    form