Позвоните мне
вернуться в портфолио Портфолио

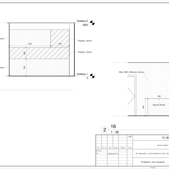
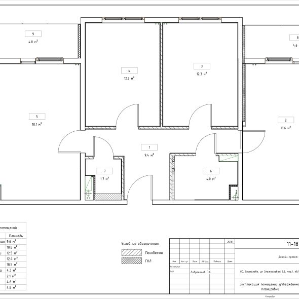
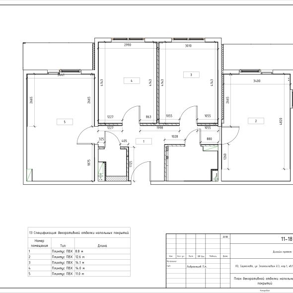
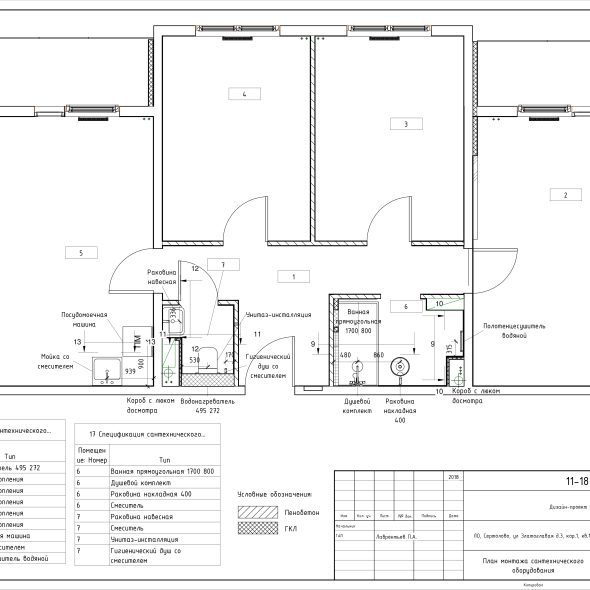
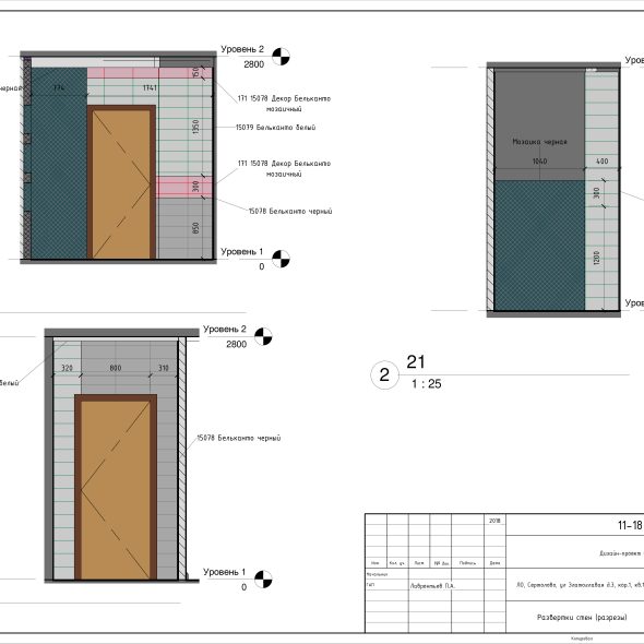
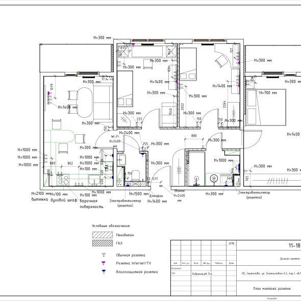
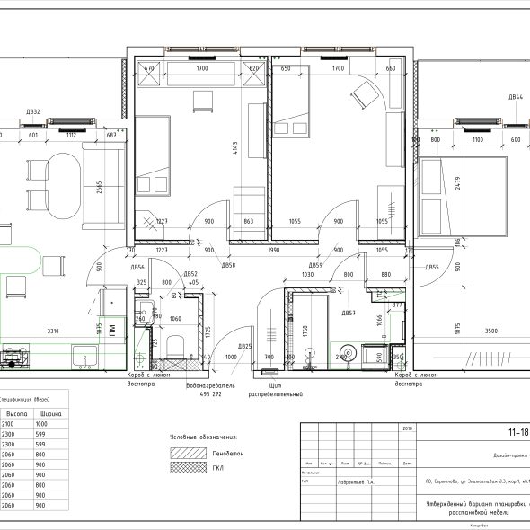
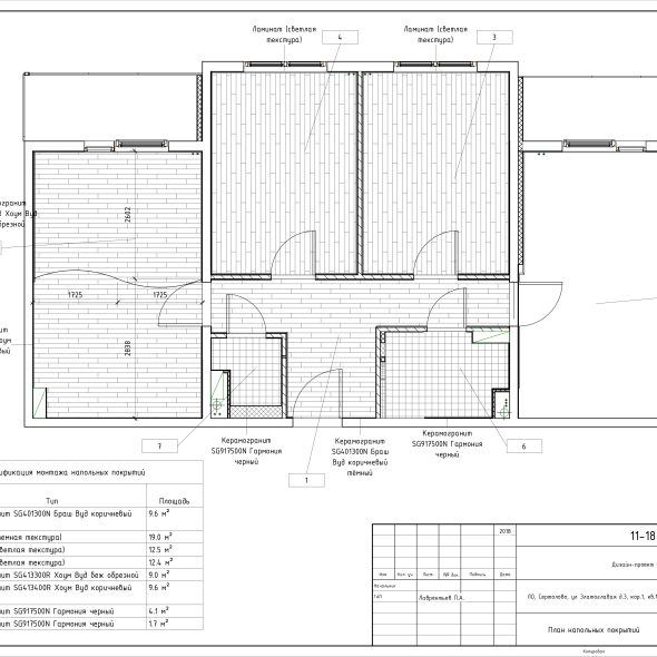
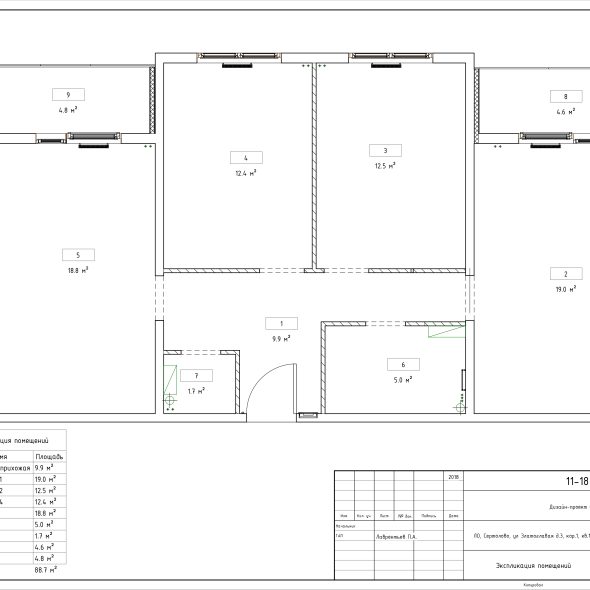
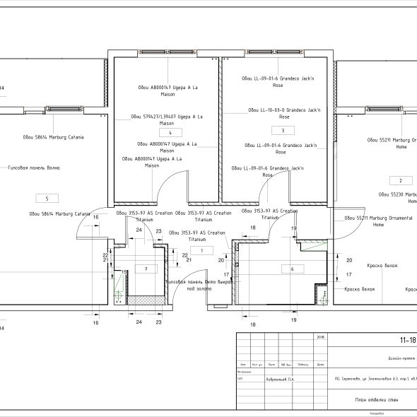
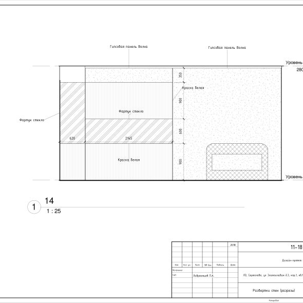
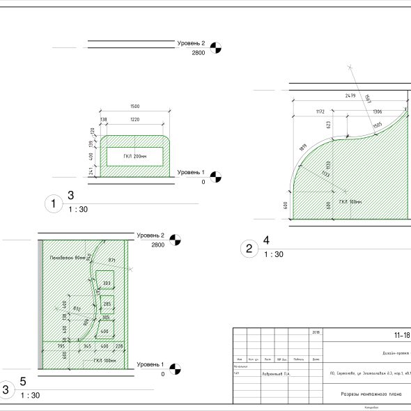
Дизайн трехкомнатной квартиры на Златоглавой улице 3

Объект

Объект: Трехкомнатная квартира

площадь

Площадь: 80 м2

локация

Локация: Златоглавая улица 3

Другие проекты

Двухкомнатная квартира для семейной пары с ребенком

Двухкомнатная квартира для двух сестер 65 м2

Получите консультацию дизайнера
по вашему проекту

    Переместите ползунок до 100%, чтобы отправить форму

    Заполняя форму, я даю согласие на обработку персональных данных

    form