Позвоните мне
вернуться в портфолио Портфолио

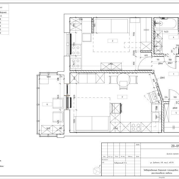
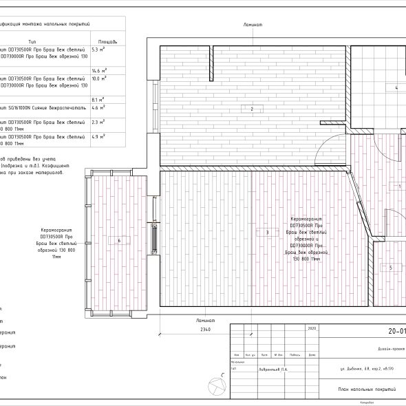
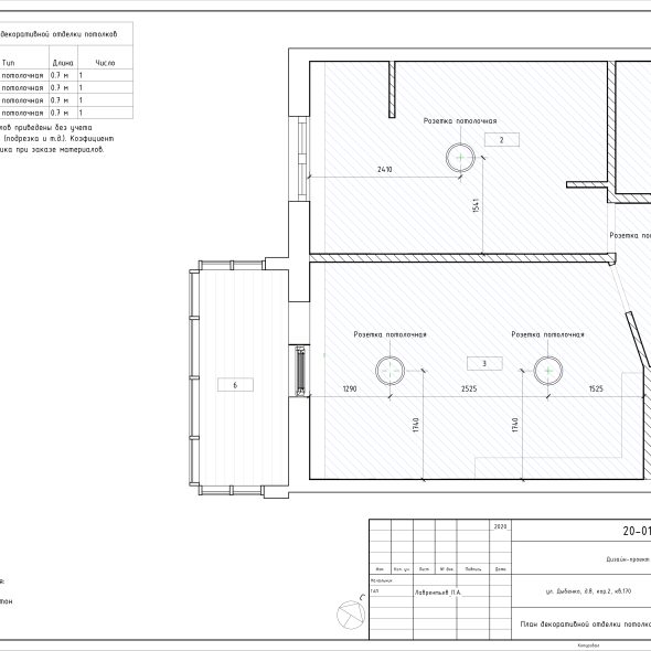
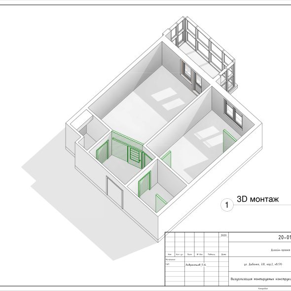
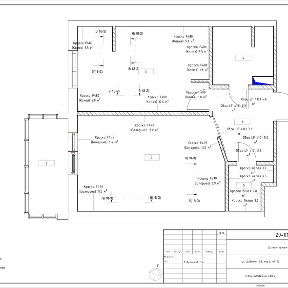
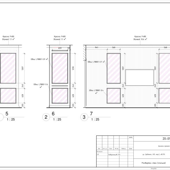
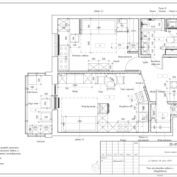
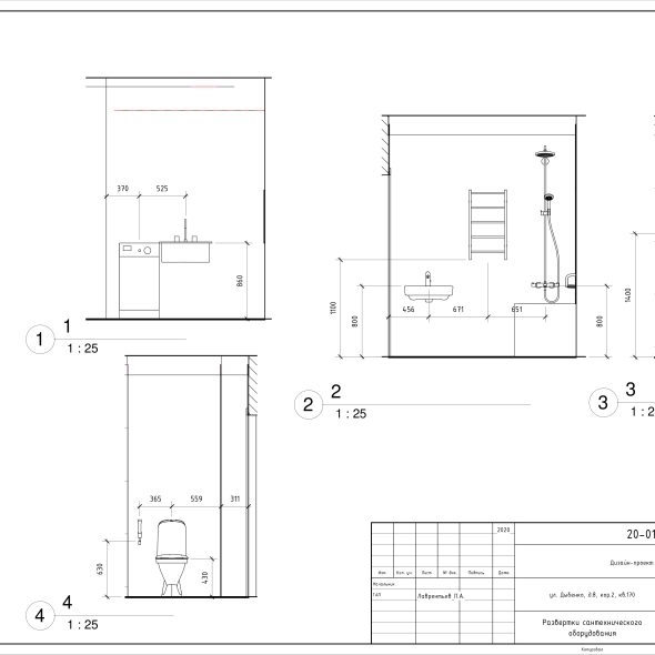
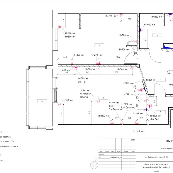
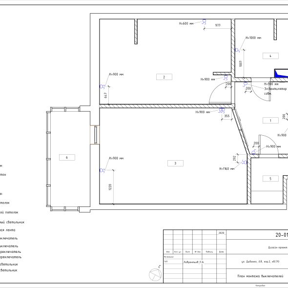
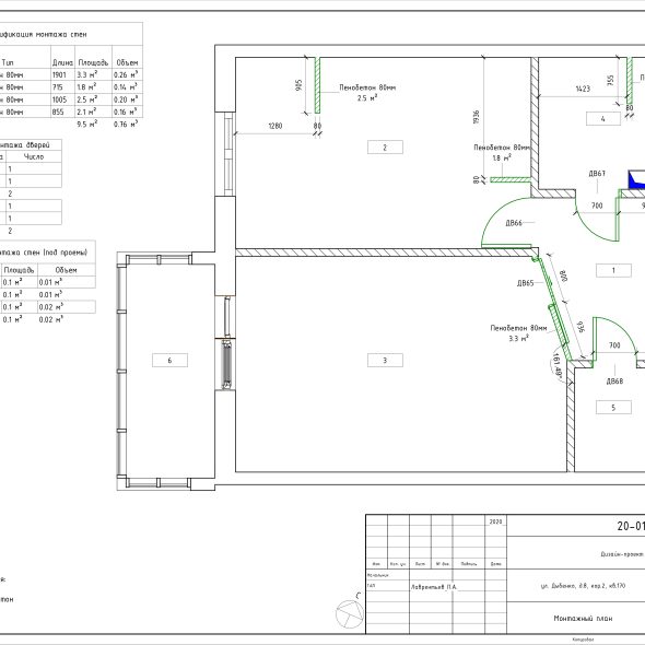
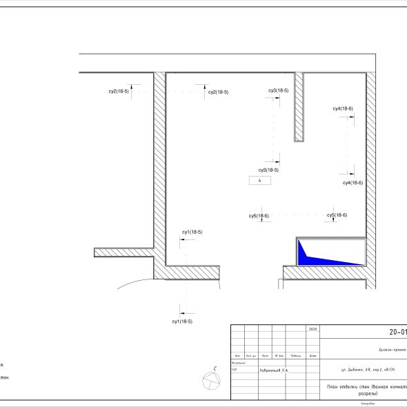
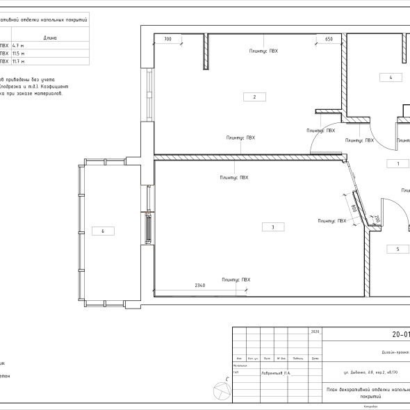
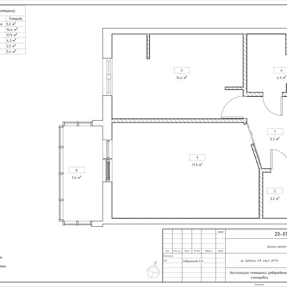
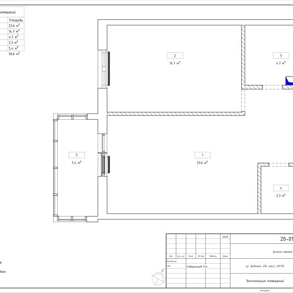
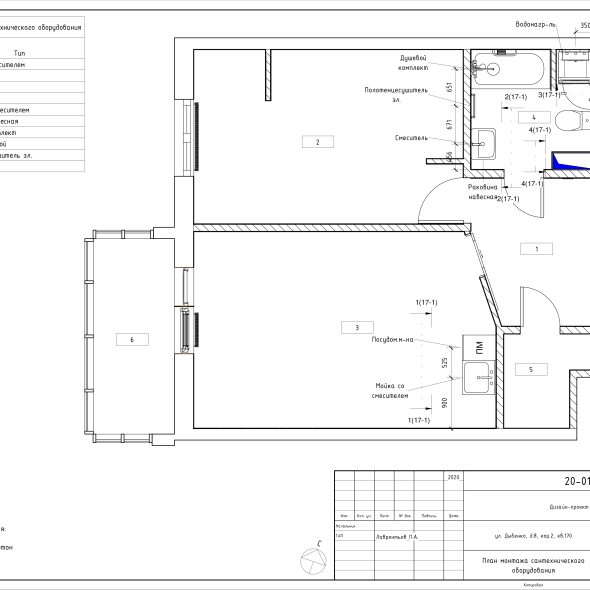
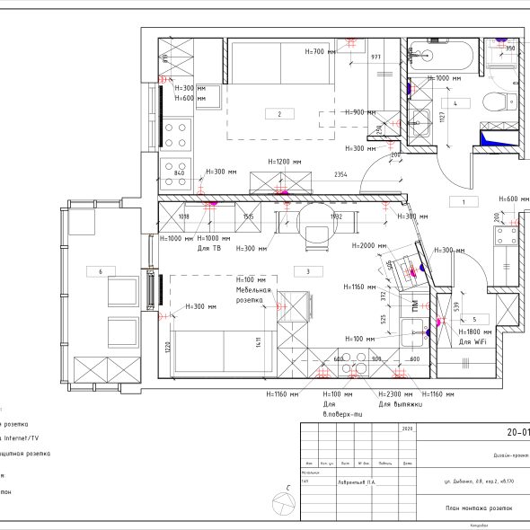
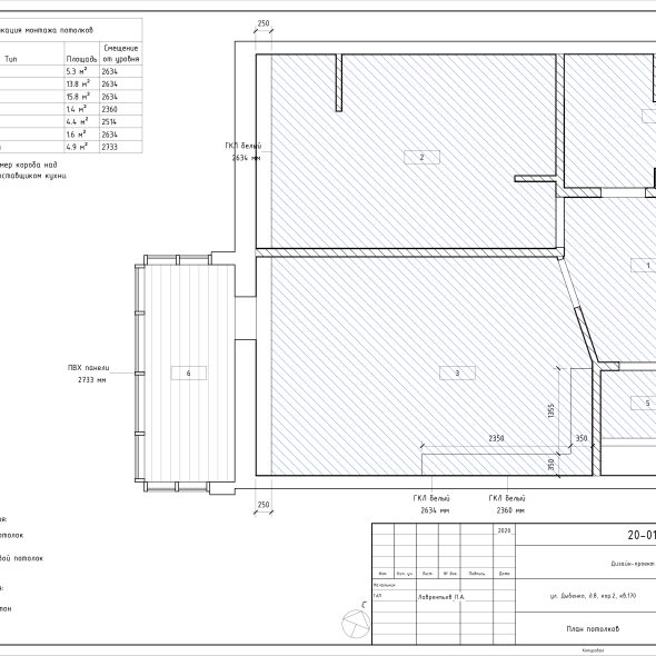
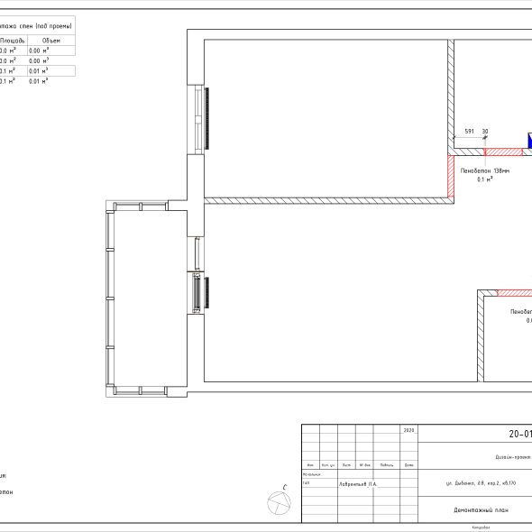
Дизайн проект однокомнатной квартиры на Дыбенко 8-2

Объект

Объект: Однокомнатная квартира

площадь

Площадь: 29 м2

локация

Локация: Дыбенко 8-2

Другие проекты

Коттедж для большой семьи 140 м2

Двухкомнатная квартира для семейной пары с ребенком

Получите консультацию дизайнера
по вашему проекту

    Переместите ползунок до 100%, чтобы отправить форму

    Заполняя форму, я даю согласие на обработку персональных данных

    form