Позвоните мне
вернуться в портфолио Портфолио

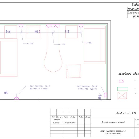
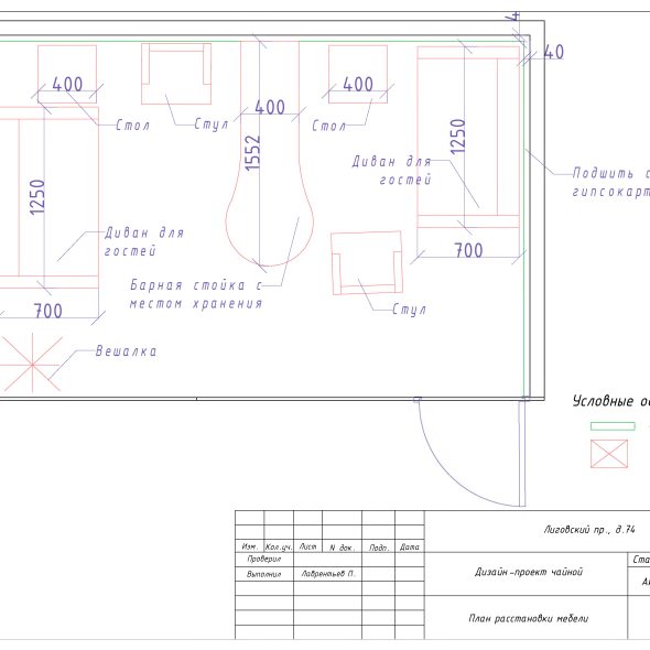
Дизайн проект офиса на Лиговском 74

Объект

Объект: Офис

площадь

Площадь: 70 м2

локация

Локация: Лиговский 74

Другие проекты

Коттедж для большой семьи 140 м2

Трехкомнатная квартира для для семьи с 2 детьми

Получите консультацию дизайнера
по вашему проекту

    Переместите ползунок до 100%, чтобы отправить форму

    Заполняя форму, я даю согласие на обработку персональных данных

    form